Начало     Проектирование     Готовые проекты     Изготовление     Информация     График работ     Контакты    

Типовой проект на плите 24м, высота до 6 метров (Готовый проект КМ, КМД, КЖ)

Может строиться без разрешения на строительство, регистрации, проекта с СРО и без прохождения экспертизы (ограничения см. раздел информация)!

Возможно корректировка высоты от 3 до 6 метров, и длины от 24 до 60 метров

Максимальная длина здания - до 60 метров

Максимальная высота - до 6 метров до низа ферм

Снеговой район - III, ветровой - I (Москва и Московская область)

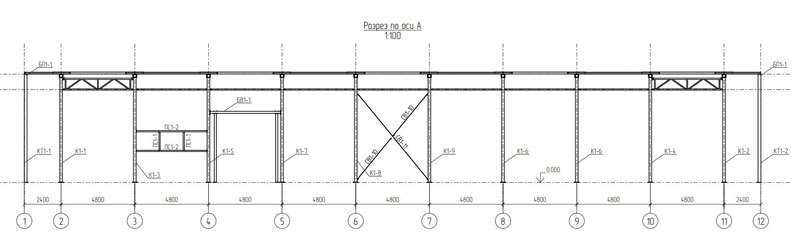
Уклон кровли - 10%.

Шаг колонн - 4 метра (новая версия 2021 года) Шаг колонн торца - 3-6м.

В проекте используется только прокатный профиль из "черного" металла - двутавр, профильная труба, швеллер и т.п..

Соединение всех элементов на болтах. Заводское изготовление.

Остекление ленточное высотой 1000 или 1200мм.

Стены и кровля - сэндвич-панели (возможна "плоская кровля" или сборный сэндвич) или профлист (для холодного здания не учтен расход металла на прогоны по стене).

Ворота шириной до 4.6м.

Без цоколя.

Фундамент - плита на подсыпке из песка.

Опирание колонн на фундамент - на отметке верха плиты.

Плита принята переменной толщиной 20-50см, бетон В25 армированный двумя сетками. Полезная нагрузка на плиту до 5т/м2.

Возможна шлифовка плиты или под стяжку 80мм.

Рассчитан под обшивку сэндвич-панелями (или профлист), кровля 150, стены 100мм

В новой версии 2021 года, был уменьшен шаг колонн до стандартного - 4 метра, что позволило уменьшить нагрузку на плиту и уменьшить массу арматуры. Были упрощены некоторые узлы и элементы, что в целом упрощает изготовление и монтаж.

Все изменения в готовый проект вносятся за дополнительную плату к стоимости готового проекта!

24х48х6м (Ш-Д-В) 1152м2 (есть вариант этого здания, но уже - 23.7х47.7х7)
Металл - 35700кг, 31кг/м2 (по старой версии)
Плита: арматура - 24600 кг, бетон В25 - 260м3 (по старой версии)


 


24х60х6м (Ш-Д-В) 1440м2, №230812 КМ, КМД и КЖ на плиту
Холодное под профлист. Металл по КМ- 45768кг, 31,8кг/м2
Фундаментная плита


 
24х45х6м (Ш-Д-В) 1080м2, №241014 КМ, КМД и КЖ на плиту
Металл по КМ- 36352кг, 33,66 кг/м2. Московская область. III снег, I ветер
Фундаментная плита