Начало     Проектирование     Готовые проекты     Изготовление     Информация     График работ     Контакты    

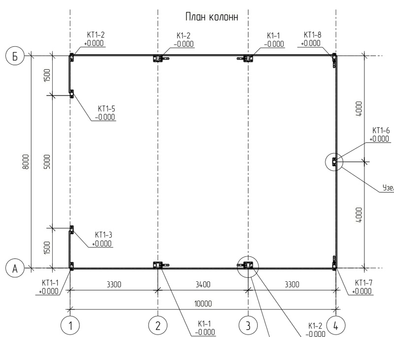
8х10х3.75м под профлист. г.Коломна

Готовый проект КМ, КМД, КЖ, ОК1

 

Рассчитан под изготовление на месте - всё на болтах.
Для снеговых районов – III
Для ветровых районов –  I


Общая площадь - 80 м2
Металлоемкость каркаса  – 3561 кг, 44,51 кг/м2.
Кровля и стены -профлист
Фундамент -существующая плита