Начало     Проектирование     Готовые проекты     Изготовление     Информация     График работ     Контакты    

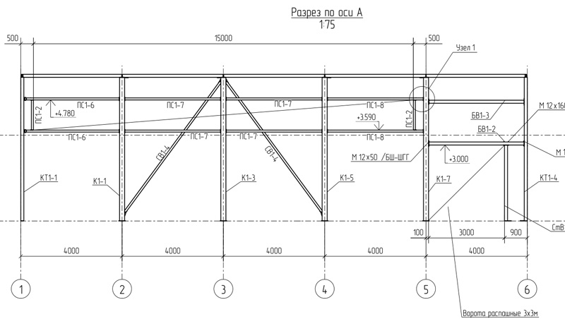
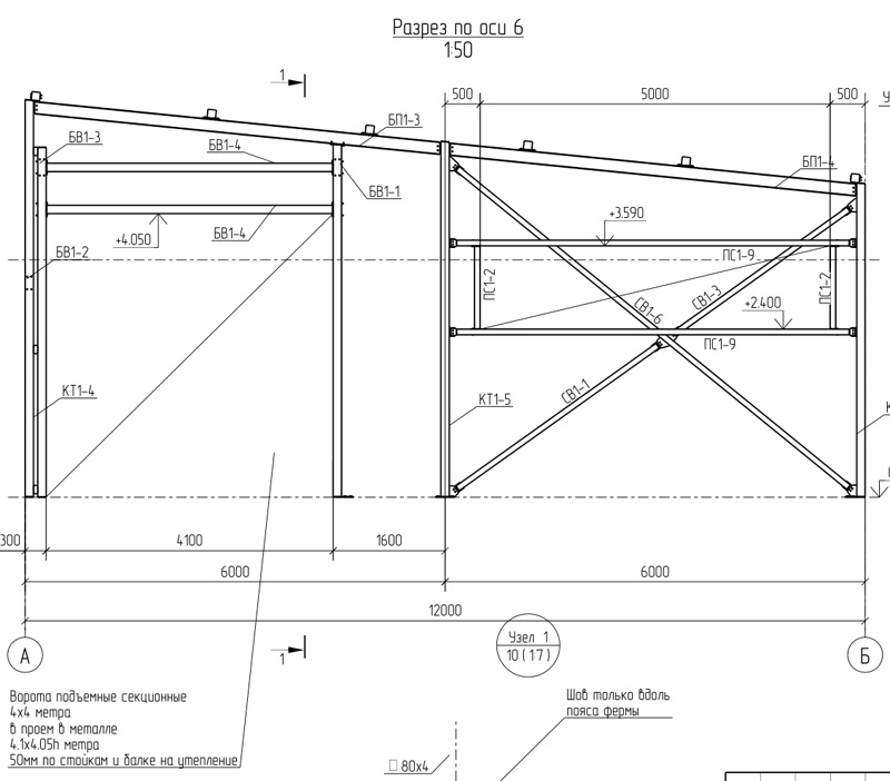
12х20х3.39м г. Москва (Готовый проект КМ, КМД, КЖ, ОК1)

 

Рассчитан под изготовление на месте - всё на болтах.
Для снеговых районов – III
Для ветровых районов –  I


Общая площадь - 240 м2
Металлоемкость каркаса  – 8620 кг, 35,9 кг/м2.
Кровля и стены - сэндвич-панели
Фундамент -плита