Начало     Проектирование     Готовые проекты     Изготовление     Информация     График работ     Контакты    

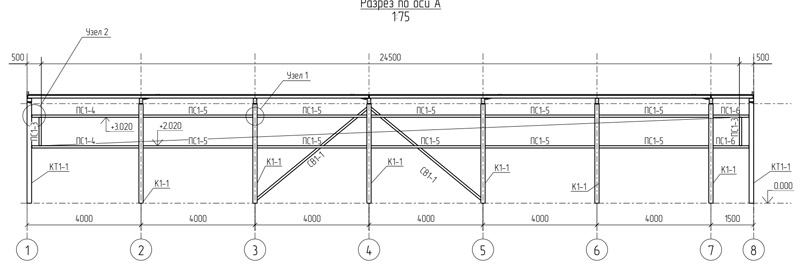
14х25.5x3.5м Двухскатное здание в V снеговом районе, г.Уфа (Готовый проект КМ, КМД, КЖ, ОК1)

 

Рассчитан под изготовление на месте - всё на монтажной сварке
Для снеговых районов – V
Для ветровых районов –  II


Общая площадь - 357 м2
Металлоемкость каркаса  – 11902 кг, 33,34 кг/м2.
Кровля и стены - сэндвич-панелей.
Фундамент - плита