Начало     Проектирование     Готовые проекты     Изготовление     Информация     График работ     Контакты    

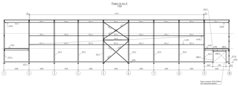
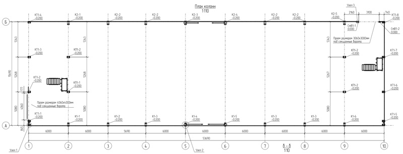
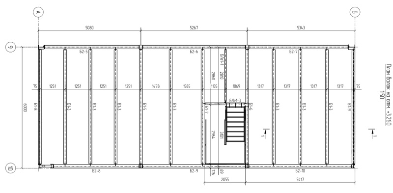
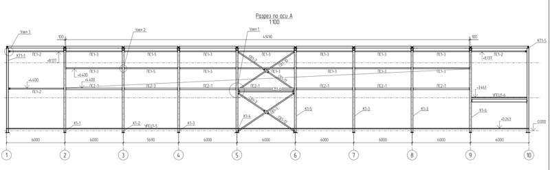
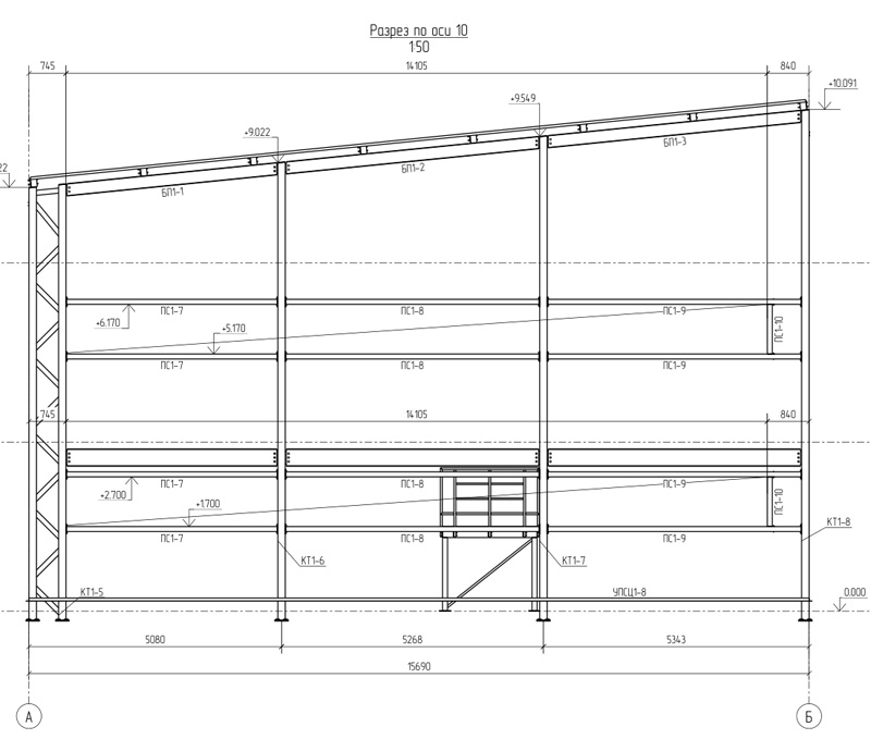
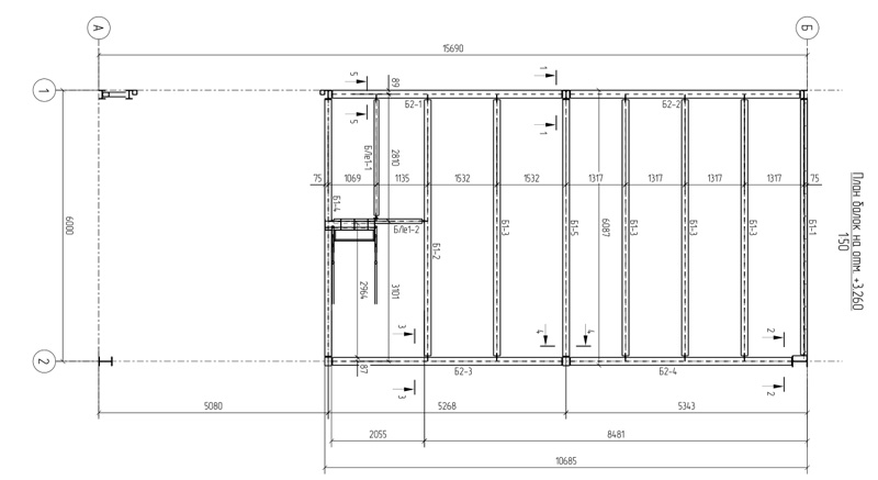
15.69х53.69х7м Односкатное (Готовый проект КМ, КМД, КЖ)

 

Рассчитан под изготовление на заводе, всё на болтах.
Для снеговых районов – I,II,III
Для ветровых районов –  I


Общая площадь - 842,4 м2 (площадка в площади не учтена, а масса учтена)
Металлоемкость каркаса  –8945кг, 57,16 кг/м2.
Рассчитан под кровлю и стены из сэндвич-панелей. На стенах кровельные сэндвич-панели и вертикально!
Фундамент столючатый.

Схожий проект этому проекту (240611_240420 15_69х53_69х7м III I КМ КМД КЖ) на одной площадке - 088 240420_240226 14_690х29_690х7 КМ КМД КЖ III I